Projekt: Musikstudio och poolhus
Projektstart: 2022
Färdigställt: 2023
Yta: 50 m²
Typ: Nybyggnad
Omfattning: Skiss till bygghandling
Entreprenadform: Utförandeentrepenad
Plats: Nacka, Stockholm
Beställare: Privat
Landskap och projektledning: Aster Trädgårdsdesign
Byggnadsentreprenör: Normbygg
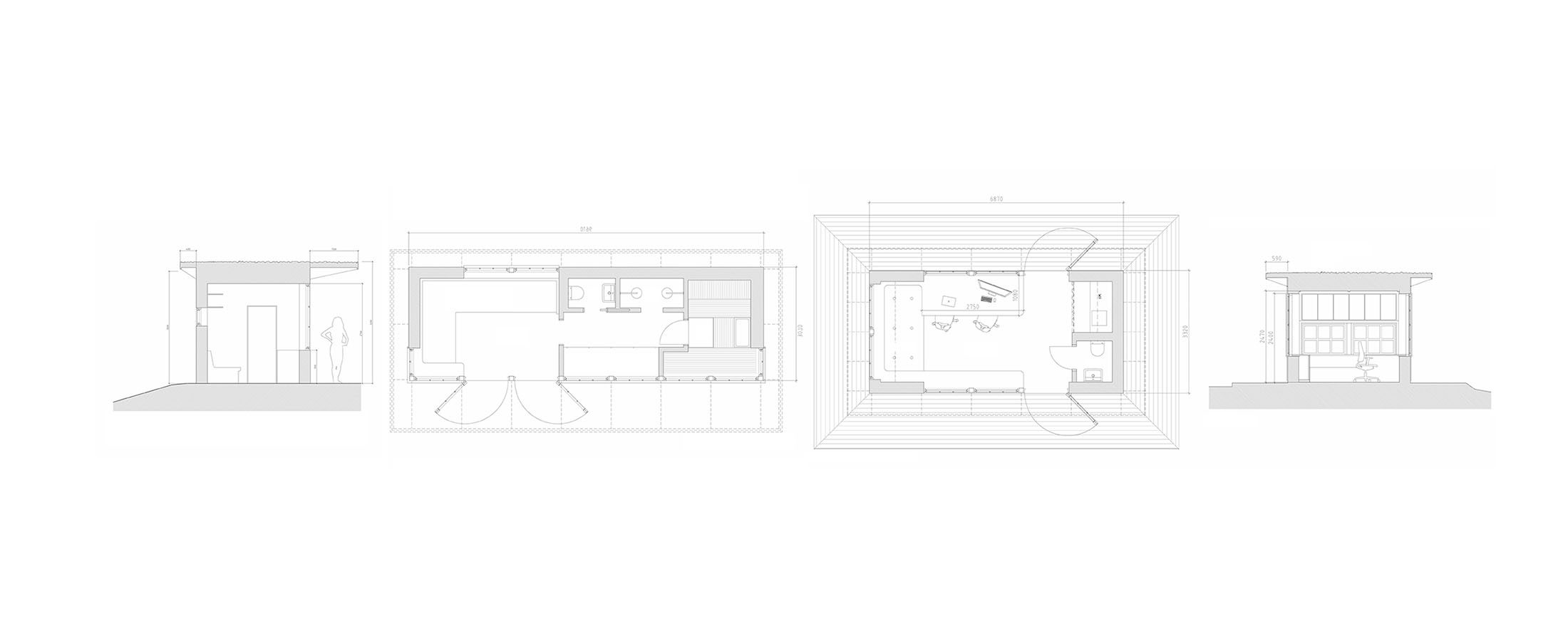
I Nackas skärgårdsmiljö, har vi ritat ett projekt bestående av två mindre byggnader: ett poolhus och en studio. Byggnaderna kännetecknas av enkelhet, svartslammade sågade träpaneler med profilerade smala lock, spröjsade fönster och platta sedumtak med robusta takfötter. Poolhusets takutsprång är noggrant utformat för att erbjuda skugga när solen står som högst men samtidigt inte skymma poolen.
Invändigt råder samma enkelhet, såpabehandlad hyvlad och slipad öländsk kalksten på golv, socklar och bröstningspaneler, släta träpaneler i mörk bets på väggar och tak. Fast möblering utformade med limträskivor och hyvlad kvadratisk trälist. Belysning från Örsjö och Wästberg





















