Projekt: Grev Tureplan
Projektstart: 2021
Färdigställt: 2024
Yta: 11 000 m²
Typ: Om och tillbyggnad av kontor och handel
Omfattning: Systemhandling, bygglov, bygghandling
Entreprenadform: Utförandeentreprenad med delade entreprenader
Plats: Stureplan, Stockholm
Beställare: Vasakronan
Platsorganisation: Byggstyrning
Miljöcertifiering: Leed Platinum
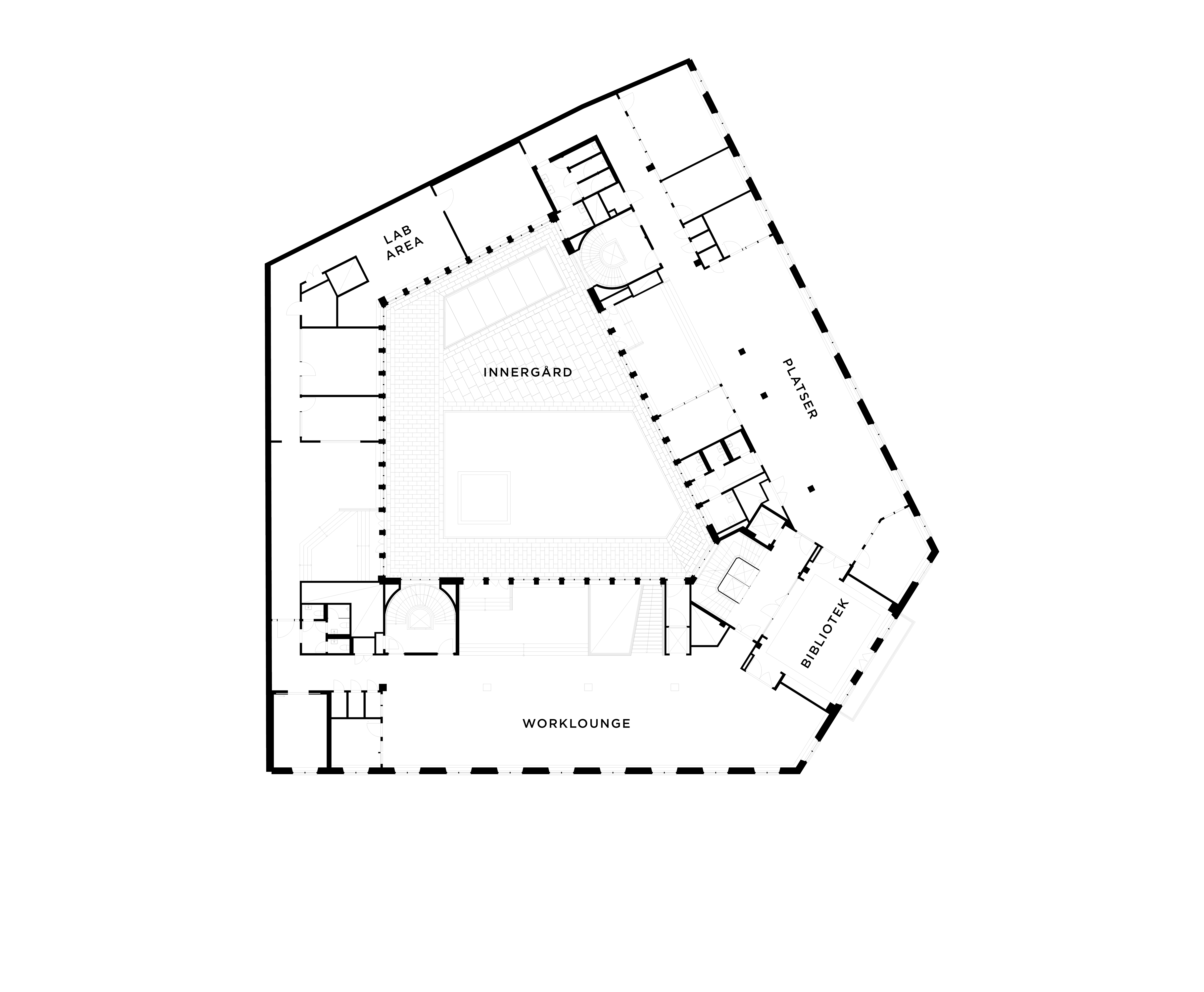
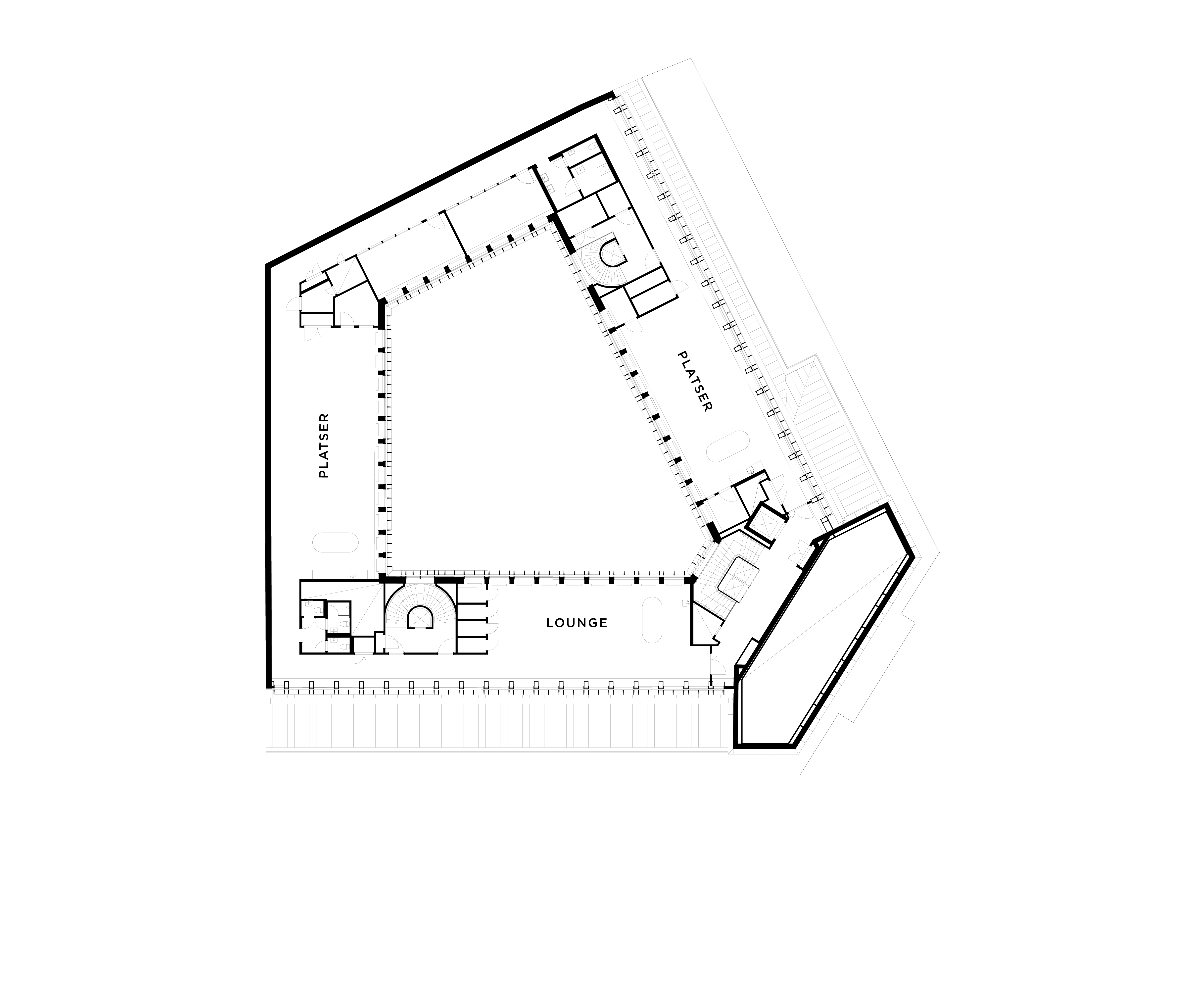
Vasakronan utför total ombyggnad och tillbyggnad av Sperlingens Backe 47, vid Stureplan i Stockholm. Byggnaden är från 1935 och ritad av Gustaf Clason.
Projektet inkluderar en vånings påbyggnad med kontor, handel och restauranger samt en tunnelbaneuppgång från Östermalms Torg mot Birger Jarlsgatan.
Projektets mål är inriktade på att skapa en miljövänlig och hållbar byggnad med hög effektivitet och en betydande mängd återbruk. Utmaningar i projektet är dels de kulturhistoriska skyddsvärdena men främst att nå en så flexibel och långsiktigt kontorsanpassning som möjligt.































